
SLUŽBY

DISPOZIČNÍ STUDIE

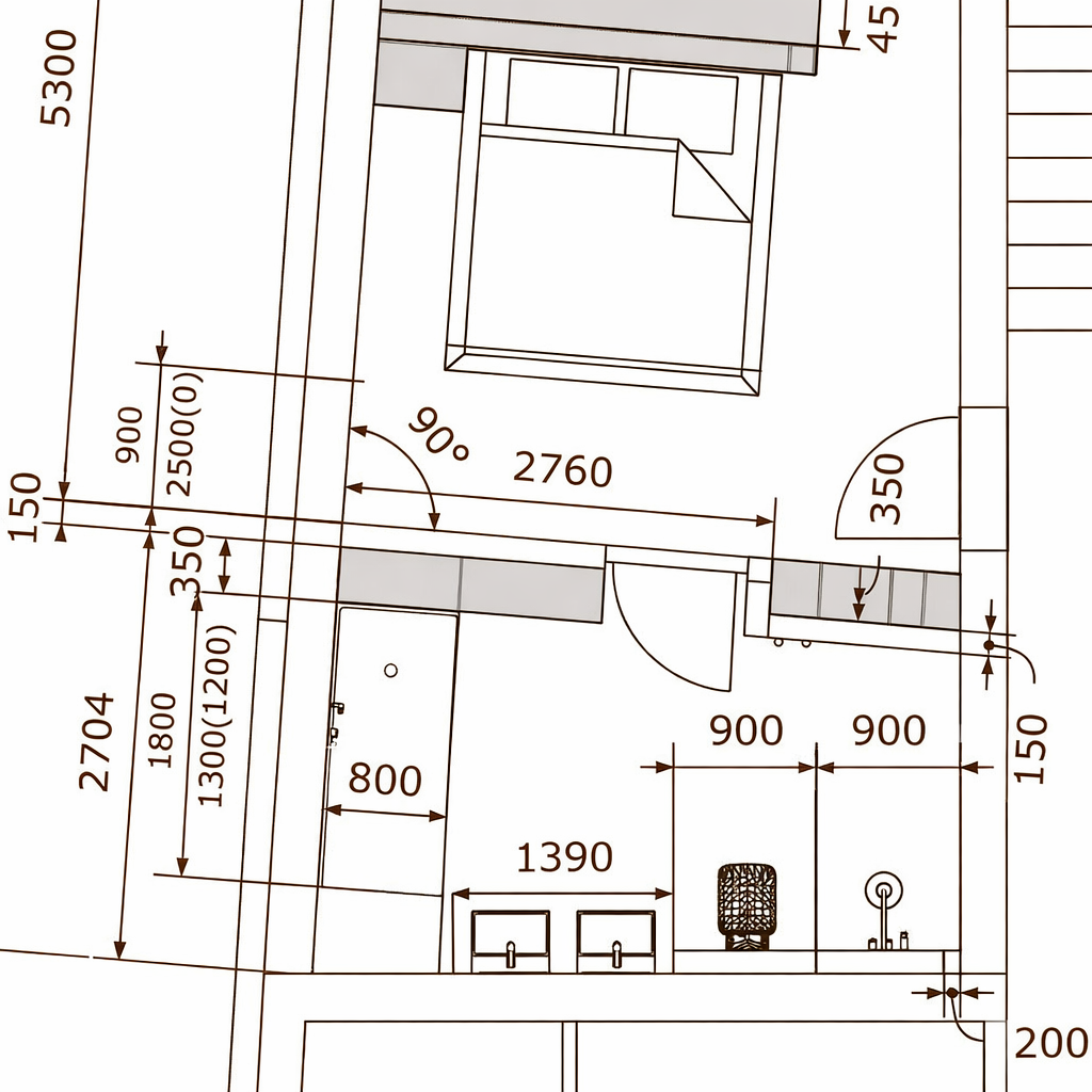
Dispoziční řešení tvoří základ funkčního interiéru. Definuje uspořádání místností a jednotlivých zón, rozmístění nábytku, komunikací i úložných prostor tak, aby interiér byl praktický a přizpůsobený Vašemu životnímu stylu.

Během úvodní konzultace mi sdělíte Vaše potřeby, požadavky, způsob užívání prostoru, rozpočet a očekávání. Požádám Vás rovněž o půdorys prostoru, případně si jej zaměřím osobně.
Poté zpracuji cenovou nabídku a po jejím schválení se pustím do práce.
Zpracovaný návrh dispozičního řešení (případně více variant) následně doladíme podle Vašich připomínek.
Po schválení konečné podoby Vám odevzdám půdorysy, které můžete využít pro realizaci nebo navazující projekt interiéru.

-
přehledný 2D půdorys dispozičního řešení v měřítku
-
zakreslení nábytku a základních funkčních prvků
-
vysvětlení navrženého řešení a doporučení pro další kroky
-
podklad, který můžete využít pro realizaci nebo navazující projekt interiéru
Cílem je vytvořit funkční a logický základ, na kterém lze dále stavět design a dotvořit atmosféru interiéru.

Cena se odvíjí od velikosti a složitosti prostoru. Orientační cena se pohybuje od 150–300 Kč / m².
Přesnou cenu Vám sdělím po úvodní konzultaci a seznámení se s prostorem.

POMOC S VÝBĚREM ZAŘÍZENÍ

Správně zvolené zařízení interiéru má zásadní vliv na jeho funkčnost, komfort i celkový dojem. Pomohu Vám s výběrem nábytku, materiálů, povrchů, osvětlení i doplňků tak, aby vše tvořilo harmonický celek a zároveň odpovídalo vašemu rozpočtu.

Nejprve se seznámím s prostorem a ujasníme si Vaše preference, styl a finanční možnosti. Požádám Vás o půdorys prostoru, případně si jej zaměřím osobně.
Poté zpracuji cenovou nabídku a po jejím schválení se pustím do práce.
-
Návrh výběru zařízení Vám následně předám k připomínkování.
-
Poté, co doladím výběr podle vašich připomínek, Vám předám přehledně zpracované podklady pro realizaci.

přehledný 2D půdorys s rozmístěním nábytku a 2D pohledy na stěny
doporučení na konkrétní produkty (nábytek, osvětlení, doplňky) s odkazy na prodejce a dodavatele
specifikaci použitých materiálů a barev
3D vizualizace prostoru
Spolupráce vám ušetří čas, nejistotu při rozhodování i zbytečné chyby při nákupech.

Cena se odvíjí od rozsahu služby a velikosti projektu. Orientační cena za pokoj o výměře 20m2 se pohybuje kolem 12 000,- Kč.
Přesnou cenu stanovím po úvodní konzultaci podle rozsahu spolupráce.

KOMPLETNÍ STUDIE INTERIÉRU

Kompletní studie interiéru je ucelený návrh, který propojuje funkční řešení prostoru s jeho vizuální podobou. Slouží jako podrobný podklad pro realizaci, díky kterému máte jasnou představu o výsledném interiéru ještě před samotnou realizací.

V úvodu se s Vámi seznámím, poznám Vaše přání, stylové preference a způsob užívání prostoru. Požádám Vás rovněž o půdorys prostoru, případně si jej zaměřím osobně.
Poté zpracuji cenovou nabídku a po jejím schválení se pustím do práce.
3D vizualizace s popisky, navrženým materiálovým řešením a výběrem zařízení s Vámi projdu. Návrh následně upravím podle Vašich požadavků.
Po schválení konečné podoby interiéru zpracuji podrobné podklady pro realizaci tak, abyste je mohli předat jednotlivým profesím.

přehledný 2D půdorys s rozmístěním nábytku a 2D pohledy na stěny
specifikaci použitých materiálů a barev
výběr a specifikaci povrchů a dveří
doporučení na solitérní prvky (nábytek, osvětlení, doplňky) s odkazy na prodejce a dodavatele
výkresy a podrobný popis atypického nábytku sloužící jako podklad pro výrobu (vč. specifikace použitých materiálů, tl.desek, úchytek, způsobu otevírání, vnitřního uspořádání skříní...)
kótovaný výkres umístění koncových prvků elektroinstalace (svítidla, zásuvky a vypínače)
3D vizualizace prostoru
doporučení na řemeslníky vycházející s osvědčené spolupráce
v případě zájmu nabízím i dohled nad realizací, aby vše proběhlo hladce a v souladu s návrhem

Cena se odvíjí od rozsahu služby a velikosti projektu. Orientační cena za pokoj o výměře 20m2 se pohybuje kolem 15 000,- Kč.
Při návrhu kompletního interiéru celého domu či bytu poskytuji slevu 10%.
Přesnou cenu stanovím po úvodní konzultaci podle rozsahu spolupráce.
